HWP문서2023 근현대건축 활용 설계 공모전_공모요강.hwp

닫기

Bridging the Old and New

참 가 안 내 서

2023. 5.

Ⅰ. 공모요강

목적

ㅇ 대학(원)생들을 대상으로 근현대건축유산에 담긴 가치와 의미를 적극 활용할 수 있는 다양하고 창의적인 아이디어를 발굴하고, 지역사회의 관심과 가치보존을 장려하기 위해 Bridging the Old and New학생공모전을 시행함

2. 공모개요

공 모 명 : Bridging the Old and New

주최 : 문화재청

공 모 주 제 : 미래를 위한 등록문화재의 보존과 다양성의 수용

설계공모 심사위원회:

조성룡(조성룡도시건축)

김기수(동아대학교)

송석기(군산대학교)

이승재(목원대학교)

김세진(지요건축)

공모대상지

- 아래 제시된 6개의 대상지 중 하나를 선정하여 설계안을 도출

순번

대상지

1

창경궁 대온실

2

대전 충청남도청 구 관사 1·2·5·6호와 부속창고

3

춘천 강원도지사 구 관사 (춘천시 지원센터)

4

익산 구 춘포역사

5

대구 삼덕초등학교 구 관사

6

제주 4‧3 수악주둔소

심사기준

- 보존, 활용, 재생, 구조 중 하나의 기준을 채택하여 설계안을 도출

기준

내용

보존

근현대 건축유산의 외관 변형 없음 (내부 변형 가능)

활용

근현대 건축유산(점단위)의 외관 변형 1/4 미만으로 아이디어 제시

외관의 변형은 고증 가능한 범위에 복원 또는 문화유산의 가치가 변형되지 않도록 제시

재생

근현대 건축유산(면단위)의 외관 변형 1/4 이상 가능한 아이디어 제시

외관의 변형은 고증 가능한 범위에 복원 또는 문화유산의 가치가 변형되지 않도록 제시

구조

근현대 건축유산의 다양성과 건축적 가지를 훼손하지 않는 범위 내에서 구조분야 특화된 아이디어 제시

참가자격

- 근현대 건축유산 및 문화재에 관심 있는 대학생 및 대학원 재학생(휴학생 포함), 전공 불문, 국적 제한 없음

- 학생공모전 참가자격은 팀원 전원 대학생 및 대학원생으로 제한

- 참가자격을 증명하는 재학증명서 또는 휴학증명서는 이메일로 작품제출 시 함께 제출

- 1팀 2인 이내 (1인이 2개팀 이상의 공동응모 불가)

- 대표자는 변경할 수 없으며, 팀원만 변경 가능(참가신청 마감일까지)

제출자료(안)

1차

- 작품패널 (A3 축소판 크기 2매, pdf 형식으로 보낼 것)

- 작품설명서 (A4 크기 1매, 1000자 이내, pdf 형식)

- 재학(휴학)증명서 (제출일로부터 1개월 이내 발급분)

2차

- 작품패널 (A1 크기 2매, 출력해서 우편으로 제출할 것)

- 모형, 계획안 설명 동영상 (2차 심사 대상자)

* 13p [1. 제출물 개요] 참고

전시장소

- 돈의문 박물관마을(현재 협의 중)

3. 공모대상지

(1) 창경궁 대온실

ㅇ (위 치) 서울특별시 종로구 와룡동 2-1

ㅇ (연 면 적) 582.3㎡

ㅇ (분 류) 등록문화재 / 기타 / 문화집회시설

위 치

위성사진

지정(등록)일

2004. 02. 06

시대

1909

소유자(소유단체)

문화재청(창경궁관리소)

관리자(관리단체)

문화재청 창경궁관리소

문화재 설명

사적 창경궁 안에 있는 대온실은 1909년에 건축된 주철골구조와 목조가 혼합된 구조체에 외피를 유리로 둘러싼 우리나라 최초의 양식 온실로써 19세기 근대건축의 새로운 유형인 철과 유리가 20세기 초 우리나라에 유입되어 건축된 모습을 보여주고 있다.

(출처 및 상세정보 : )

참고 도면

(출처 및 상세정보 : )

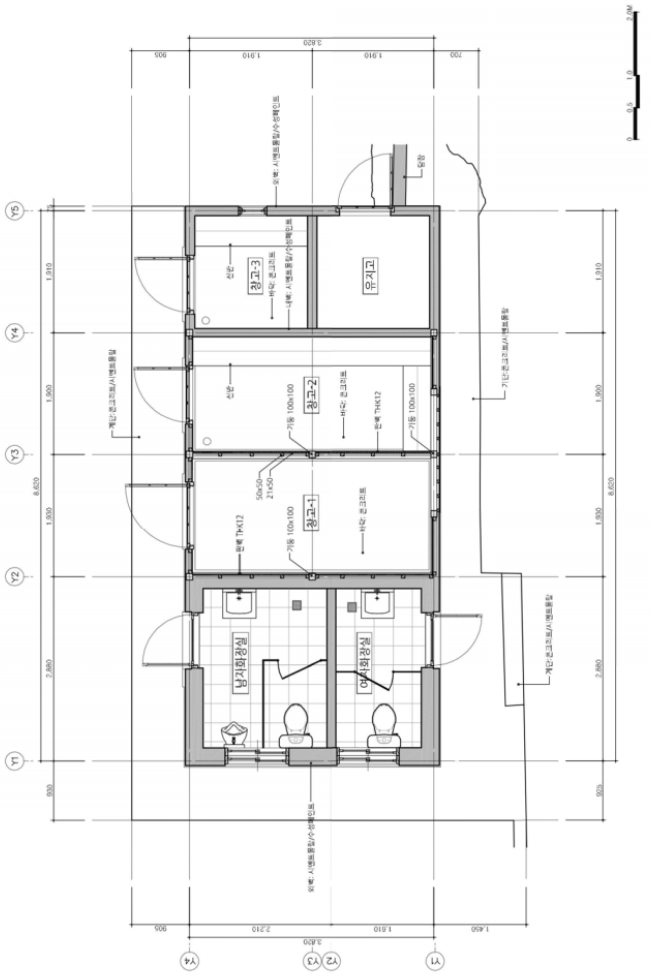
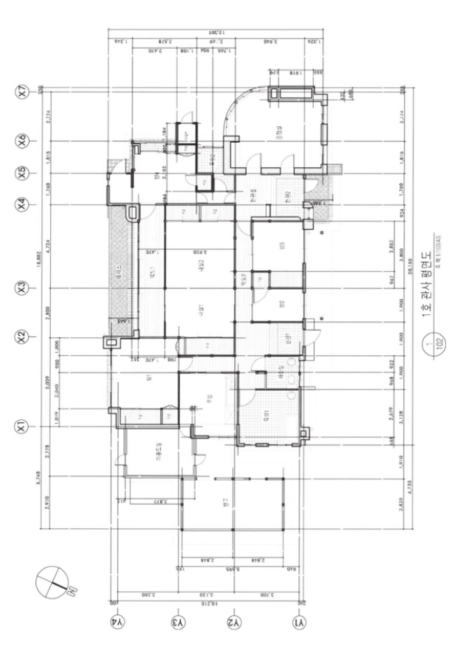
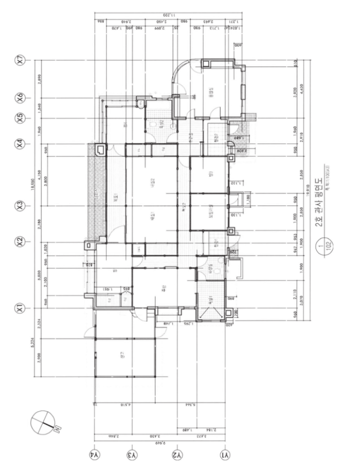
(2) 대전 충청남도청 구 관사 1·2·5·6호와 부속창고

ㅇ (위 치) 대전광역시 중구 보문로 205번길 22, 18, 23, 17

ㅇ (연 면 적) 807.7㎡

ㅇ (분 류) 등록문화재 / 기타 / 주거숙박시설

위 치

위성사진

지정(등록)일

2004.09.04

시대

1930~40년대

소유자(소유단체)

충청남도

관리자(관리단체)

충청남도

문화재 설명

1930~40년대에 국장급 이상의 고위 관료들을 위해 조성된 관사촌으로 일제 강점기 관사 건축의 전형을 볼 수 있다. 이들 관사는 형태·재료·배치가 균일하며 주위의 경관과도 조화를 잘 이루고 있다. 지금은 한국전쟁 당시 이승만 대통령이 머물렀던 충남 도지사 공관을 비롯하여 4동의 관사와 3동의 창고가 남아 있어, 관사의 기능을 현재까지 그대로 유지하고 있다.

(출처 및 상세정보 : )

참고 도면

(출처 및 상세정보 : 33p~95p)

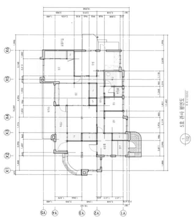
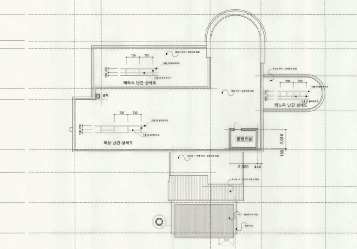
(3) 춘천 강원도지사 구 관사 (춘천시 지원센터)

ㅇ (위 치) 강원도 춘천시 옥천동 111-1

ㅇ (연 면 적) 336.2㎡

ㅇ (분 류) 등록문화재 / 기타 / 문화집회시설

위 치

위성사진

지정(등록)일

2004.09.04

시대

1964

소유자(소유단체)

춘천시

관리자(관리단체)

춘천시

문화재 설명

원래 강원도지사 관사로 건립하였으나, 1999년부터 춘천문화원으로 사용하다가 현재는 춘천시청 부속 건물로 사용하고 있다. 전면 출입구에 설치한 캐노피를 지지하는 V자모양 기둥이 독특하며, 철재 옥상 난간과 반원형 벽면, 비대칭적 공간 구성 등 근대 건축의 특성을 잘 보여 준다.

독일의 표현주의적 건축성향을 보이는 디자인이 매우 우수한 건축물로 근대주의 건축특성을 잘 보여준다.

(출처 및 상세정보 : )

참고 도면

(출처 및 상세정보 : 227p~260p)

(4) 익산 구 춘포역사

ㅇ (위 치) 전라북도 익산시 충포면 덕실리 481-3

ㅇ (연 면 적) 역사 84.6㎡ -화장실 34.8

ㅇ (분 류) 등록문화재 / 기타 / 공공용시설

위 치

위성사진

지정(등록)일

2005.11.11

시대

1914년

소유자(소유단체)

한국철도공사

관리자(관리단체)

한국철도공사

문화재 설명

춘포역은 전라선로의 역사로 1914년에 건립되어 1914년 11월 이리-전주간 선로를 개통하고 영업을 개시하였다. 구조는 목조로 벽체는 시멘트로 변형되어 있다. 지붕은 맞배형식으로 박공이 철로 방향에 설치되어 있다. 역은 복선화 완료후 폐역되었다.

(출처 및 상세정보 : )

참고 도면

(출처 및 상세정보 : 939p~968p)

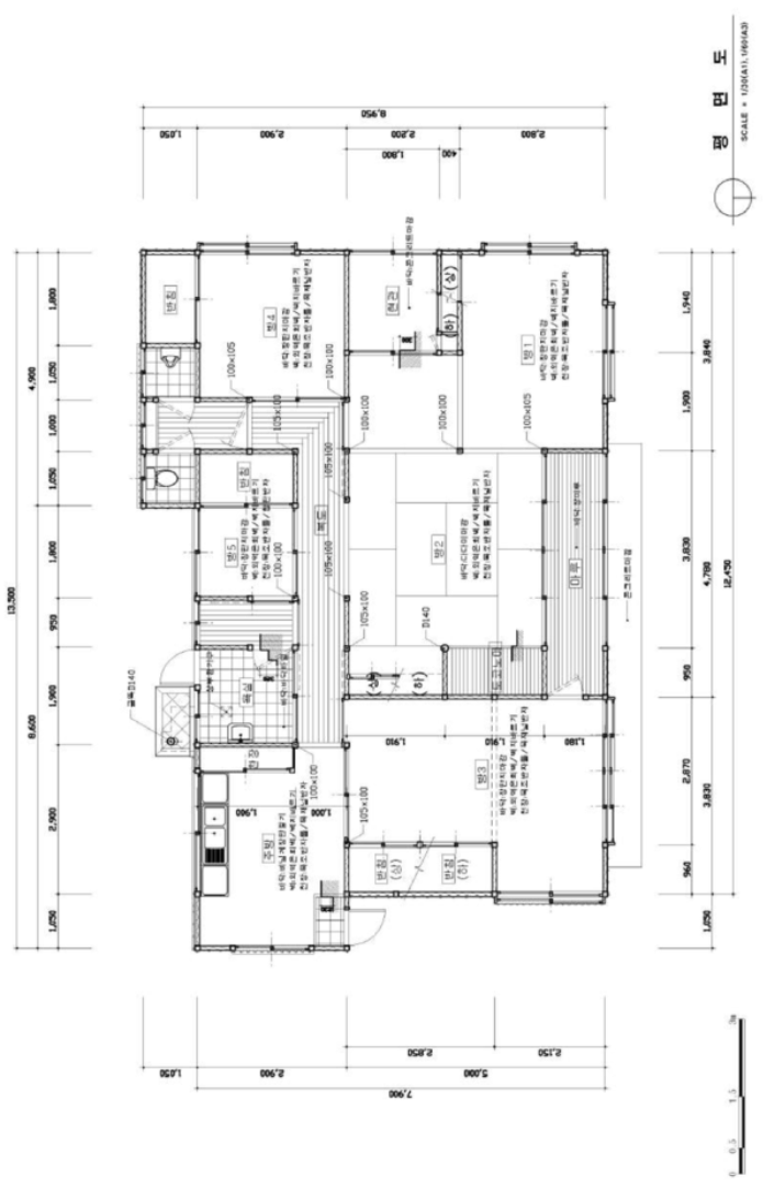
(5) 대구 삼덕초등학교 구 관사

ㅇ (위 치) 대구광역시 중구 삼덕동 3가 221

ㅇ (연 면 적) 139.1㎡

ㅇ (분 류) 등록문화재 / 기타 / 교육시설

위 치

위성사진

지정(등록)일

2013.12.20

소유자(소유단체)

대구 중구청, 기획재정부

관리자(관리단체)

대구 중구청

문화재 설명

삼덕초등학교 관사는 1939년 대구덕산공립심상소학교 교장 관사로 건축된 목조건축물로, 외관을 비늘판 붙임으로 하는 등 일본식 주거건축의 특징을 잘 갖추고 있으며, 근대 시기 대구지역에 건립된 교육관련 시설 가운데 현존하는 몇 안 되는 관사 건물로 가치가 있다.

(출처 및 상세정보 : )

참고 도면

(출처 및 상세정보 : 1022p~1037p)

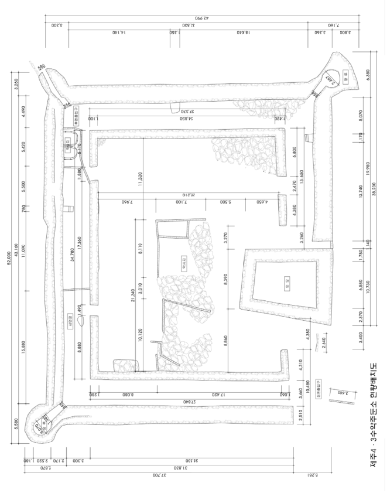
(6) 제주 4‧3 수악주둔소 (터)

ㅇ (위 치) 제주특별자치도 서귀포시 남원읍 신례리 산87

ㅇ (연 면 적) 약 1,920㎡ (석성 길이 약 271m)

ㅇ (분 류) 등록문화재 / 기타 / 전쟁관련시설

위 치

위성사진

지정(등록)일

2018.06.11

소유자(소유단체)

산림청

관리자(관리단체)

제주특별자치도

문화재 설명

해방 이후 정부수립 및 한국전쟁 당시 정치적, 사회적 혼란기 속에서 한국 현대사의 주요 사건이었던 제주 4․3사건의 역사성과 지역성을 지닌 대표적 유적으로, 무장대 토벌을 위해 당시 만들어졌던 많은 주둔소 중에서 규모가 크고, 건축적인 면에서 형식구조도 독특하며 보존상태도 양호하다. 제주 4․3사건의 흔적이 대부분 사라지고 현존 유적도 극소수인 상태에서 제주 4․3사건을 재조명하고 그것으로부터 교훈을 얻기 위한 역사적 현장유구로서 상징적 의미가 있다.

(출처 및 상세정보 : )

참고 도면

(출처 및 상세정보 : 1p~15p)

4. 공모일정

구 분

일 정

비 고

공고

03. 24

공모전 공식 SNS

참가신청

5. 01. 09 : 00 ~

6. 19. 17 : 00

팀별로 참가신청서를 작성하여 공모전 공식이메일계정으로 신청

(* 파일명 : 팀장(팀원)_대학이름)

bridgingtheoldandnew@gmail.com

설계공모 주제 콜로키움

5, 6월 중

온라인 게시

(공모전 취지와 국내외 사례를 소개)

질의응답

6. 12. 09 : 00

~ 6. 14. 17 : 00

공모전 공식 이메일 접수

bridgingtheoldandnew@gmail.com

답변게시

6. 16.

정해진 기간 외의 질의 내용에 대해서는 답변하지 않음

온라인 공지 및 개별 답장

1차

작품접수

7. 10. 17 : 00

공모전 공식 이메일 접수

bridgingtheoldandnew@gmail.com

서면심사

추후 공지

 17팀 이상 선정

위원회 의견수렴 후 결정

결과발표

7. 19.

온라인 공지

(페이스북, 인스타그램)

2차

작품접수

8. 09.

09 : 00 ~ 17 : 00

판넬 출력물모형

(택배 도착 기준)

심사

(PT발표)

추후 공지

PT용 동영상 개인 USB에 담아올 것

최종

결과발표

8월 중

온라인 공지

(페이스북, 인스타그램)

시상식 및 전시 오픈, 학술대회

2023. 8. 30.

장소 : 추후공지

학술행사와 연계하여 진행

* 공모일정은 추진여건에 따라 변경될 수 있으며, 변경시 공식 SNS를 통하여

공지 예정임

* 페이스북 :

인스타그램 : =

5. 시상

구 분

당선작

포상내역

장학금

대 상

1팀

600만원

최우수상

1팀

200만원

우수상

2팀

150만원

특별상

3팀

100만원

장려상

10팀이상

50만원

* 관련법에 의한 제세공과금은 수상자 부담

6. 작품반환

ㅇ 시상식 일정에 따라 추후공지

* 반환기간 내 회수하지 않는 작품은 임의 처리

7. 기타사항

ㅇ 응모된 작품에 대한 저작권은 응모자에게 있으며, 문화재청은 응모자와 협의하여 응모작을 활용할 수 있음

ㅇ 본인 작품이 아니거나, 외국사례 복사 또는 다른 공모전에 출품한

동일 작품은 심사에서 제외되거나 입상을 취소함

ㅇ 시상일정 및 장소는 심사결과 발표 시 SNS와 이메일을 통해 통보

- 시상식에는 반드시 대표자 및 팀원 전원 참석

ㅇ 참가안내서의 내용을 충분히 숙지한 후 응모하시기 바라며, 안내서

내용 미숙지로 인한 불이익은 책임지지 않습니다.

Ⅱ. 작품 제출 및 작성기준

1. 제출물 개요

시기

규격 및 구성

수 량

접수방법

1차

판넬 (축소판)

- A3 단면 2매 PDF 파일

1부

공모전 공식 이메일 접수

bridgingtheoldandnew@gmail.com

작품설명서

- A4 단면 1매

1부

재학(휴학)증명서

- 제출일로부터 1개월 이내 발급분

1부

2차

설계 영상콘텐츠

- 5분 이내 동영상, 500MB 이내

- mp4 또는 mov형식 (HD이상)

- 1280x720 또는 1920x1080이상

1부

판넬 출력물 제출

- A1 단면 2매

1부

택배

모형 및 받침대

- 750mm * 600mm * 100mm

1점

모형사진 6컷, 팀원 사진

- jpg 형식

- 해상도 300dpi

1식

공모전 공식 이메일 접수

bridgingtheoldandnew@gmail.com

* 판넬, 모형 및 영상 등은 규격 및 구성, 수량 위반 시 접수 불가

* 작품 설명서는 영상에 포현하지 못하는 아이디어 등을 자유롭게 기술하되,

작성자를 인지할 수 있는 내용은 심사에서 제외될 수 있으니 절대 금지

* 모형사진은 검은색 바탕에 모형의 전체 및 디테일한 뷰가 나오도록 6컷 제출

* 모든 제출물에는 참가번호만 명기

[참가자 관련정보(학교, 이름 등) 명기 금지, 위반 시 탈락 처리]

2. 제출물 작성기준

1) 작품설명서

건축개요를 표현하여야 하며, 용도별 면적 및 비율을 명기하고,

건축물의 연면적/용적률/건폐율/층수를 명기

작품에 대한 전반적인 사항을 자유롭게 표기하되 A4 1매 작성

* (붙임) 작품설명서 양식 사용

2) 판넬

참가번호 외 작성자를 인지할 수 있는 표시를 하지 말 것

1차 제출 판넬(축소판)A3 크기 2매로 구성하고 칼라표현 가능

2차 판넬은 A1 크기 2매로 구성하고 칼라표현이 가능함. 2개의

판넬은 각각 별도로 제작하되 각 판넬의 장변이 가로(횡)

되도록 제작

[참가번호 및 일련번호(#1, #2)를 판넬 뒷면 우측상단에 표기]

액자나 장식물, 입체 돌출물 등을 일절 허용하지 않으며, 두께

10mm 폼보드에 부착하여 제출

건축개요를 표현하여야 하며, 용도별 면적 및 비율을 명기하고,

건축물의 연면적/용적률/건폐율/층수를 명기

방위표시와 막대기형 축척(bar scale)을 우측하단에 표시할 것

ㅇ 2차 제출 시 1차 제출한 판넬은 수정할 수 없음

(앞면)

A1 사이즈

(594mm*841mm)

(뒷면) #1 참가번호

(앞면)

A1사이즈

(594mm*841mm)

(뒷면) #2 참가번호

2) 설계 영상콘텐츠

디자인 개념, 프로세스, 공간 구성 및 실내공간 등 전체 설계과정에 관한 사항을 자유롭게 영상콘텐츠로 표현하되, 디지털 디자인 기법을 적극적으로 활용할 것(표현형식 제한 없음)

동영상 제작 세부사항은 아래와 같음

- 5분 이내(500MB이내) mp4 또는 mov 영상형식

- HD이상의 포맷, 1280 x 720 또는 1920 x 1080이상

- 동영상에 사용되는 영상 및 이미지 등의 자료는 저작권자로부터 사전 허락을 받거나 비영리 목적으로 사용가능한 자료만 사용

사용 소프트웨어 제한 없음

2) 모형

모형 축적은 1/200로 대상지가 중심에 위치하도록 제작할 것

모형 받침대 치수는 750mm x

600mm x 100mm로 제작하고

받침대와 건축물 모형 이외에

프레임, 장식, 뚜껑 등

사용 불가

간략한 대상지 주변 표현 제작

가능

모형은 장변(가로)방향이 정면성을 가지도록 제작하고, 방위표시와

막대기형 축척(bar scale)을 우측하단에 표시할 것

근현대건축 활용 설계공모전 및 학술대회Bridging the Old and New

1. 참가 신청서

(해당에

표시 )

접수번호

접수번호는 기재하지 않음

대상부지

창경궁 대온실 대전 충청남도청 구 관사 1·2·5·6호와 부속창고

춘천 강원도지사 구 관사 익산 구 춘포역사 대구 삼덕초등학교 구 관사

제주 4‧3 수악주둔소

신청자

정보

(팀장)

성명

생년월일

00. 00. 00

학교명

학과까지 기재

지원자격

대학생 대학원생

전화번호

상시 연락 가능한 번호

E-mail

안내 전달에 활용하므로 정확히 기입

주소

( - ) 주민등록상 주소 기재

신청자

정보

(팀원)

성명

생년월일

00. 00. 00

학교명

학과까지 기재

지원자격

대학생 대학원생

전화번호

주소

( - ) 주민등록상 주소 기재

작품명

추후 변경 불가

내 용

내용을 간략하게 설명

근현대건축 활용 설계공모전 및 학술대회Bridging the Old and New에 따라 참가신청서 및 첨부 서류를 다음과 같이 제출합니다.

공모전 심사 및 수상 시 시상금 지급을 위해 위의 개인정보를 수집하는 것에 동의 합니까? 동의함 동의하지 않음

2023년 월 일

신청인(팀장) : (서명)

문화재청 귀하

첨부 : 참가서약서 1부.

작품설명서 1부.

근현대건축 활용 설계공모전 및 학술대회Bridging the Old and New

2. 참가 서약서

신청자

정보

(팀장)

성명

생년월일

00. 00. 00

학교명

학과까지 기재

지원자격

대학생 대학원생

전화번호

상시 연락 가능한 번호

E-mail

안내 전달에 활용하므로 정확히 기입

주소

( - ) 주민등록상 주소 기재

신청자

정보

(팀원)

성명

생년월일

00. 00. 00

학교명

학과까지 기재

지원자격

대학생 대학원생

전화번호

주소

( - ) 주민등록상 주소 기재

상기 본인은 Bridging the Old and New에 출품함에 있어, 다음 각 호의 규정을 준수할 것을 서약합니다.

1. 본 공모의 제반 규정을 준수하며, 이를 준수하지 않을 경우 불이익을 받을 수 있다.

2. 입상된 아이디어는 문화재청과 수상자가 공동으로 소유하며, 향후 대국민 서비스를 제공할 수 있도록 문화재청의 사업수행에 적극 협조한다.

3. 참가자가 제출한 아이디어의 저작권으로 인해 발생하는 민형사상 책임은 참가자에게 있다.

2023년 월 일

서약인(팀장) : (서명)

서약인(팀원) : (서명)

문화재청 귀하

근현대건축 활용 설계공모전 및 학술대회Bridging the Old and New

3. 작품 설명서

작품명

(맑은고딕 12pt 굵게)

대상부지

건축개요

대지면적 (㎡)

(맑은고딕 11pt)

층 수

지하, 지상

건축면적 (㎡)

건 폐 율 (%)

연 면 적 (㎡)

용 적 률 (%)

작품설명

(작품에 대한 설명 자유롭게 기술, 1장 이내로 작성)

(맑은고딕 11pt)